
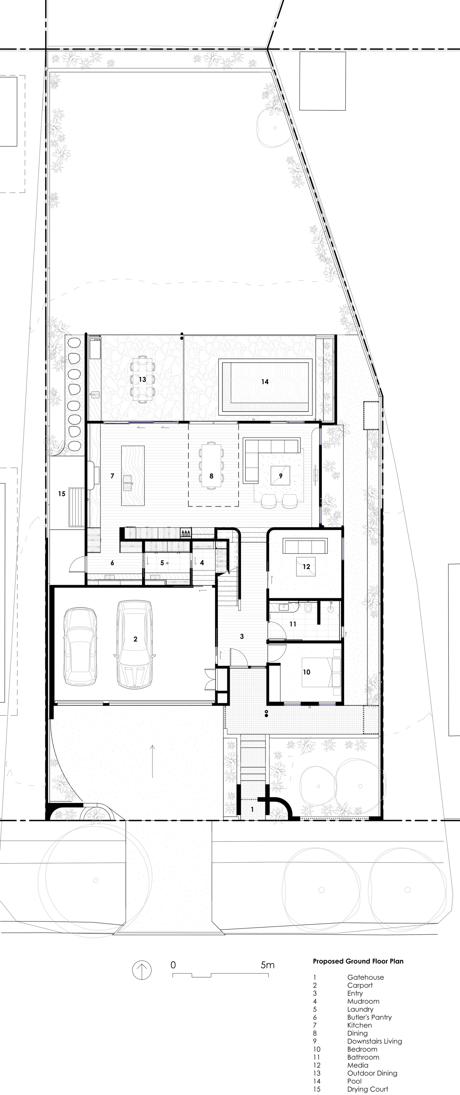
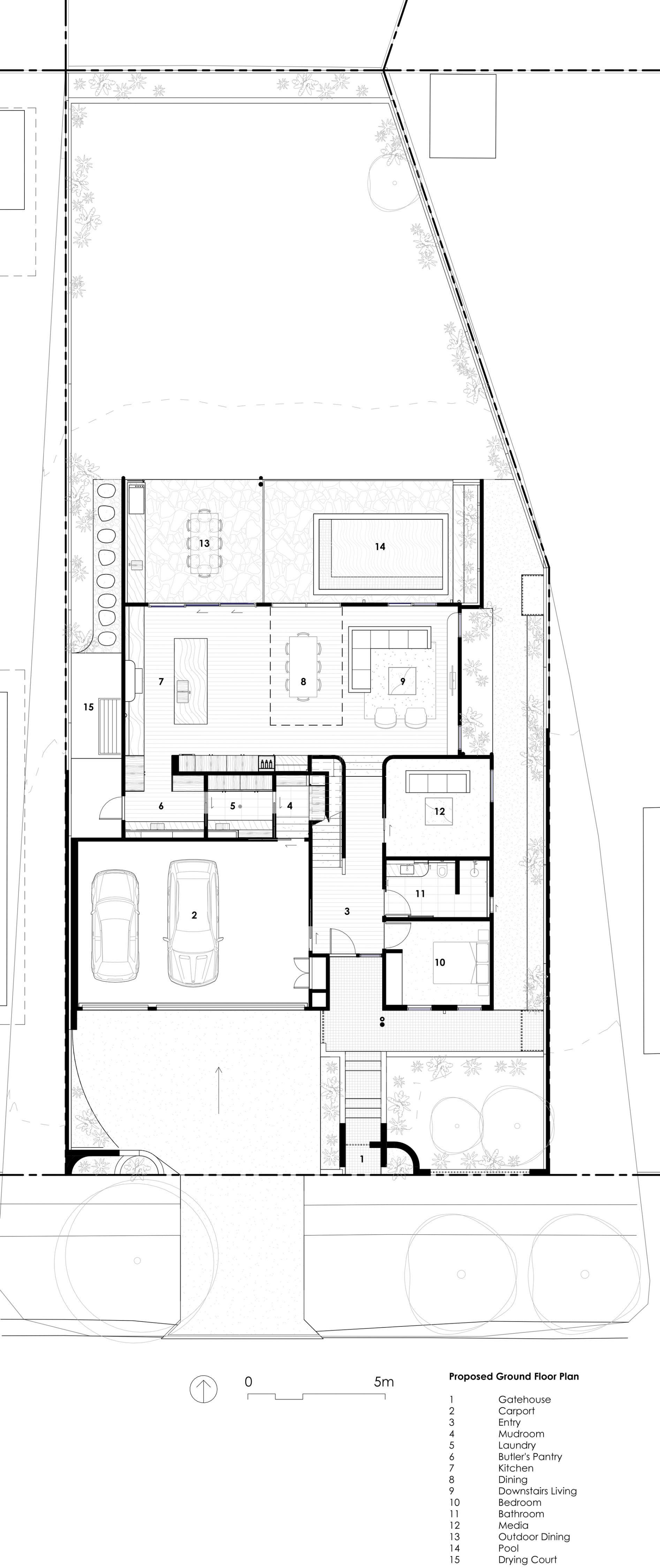
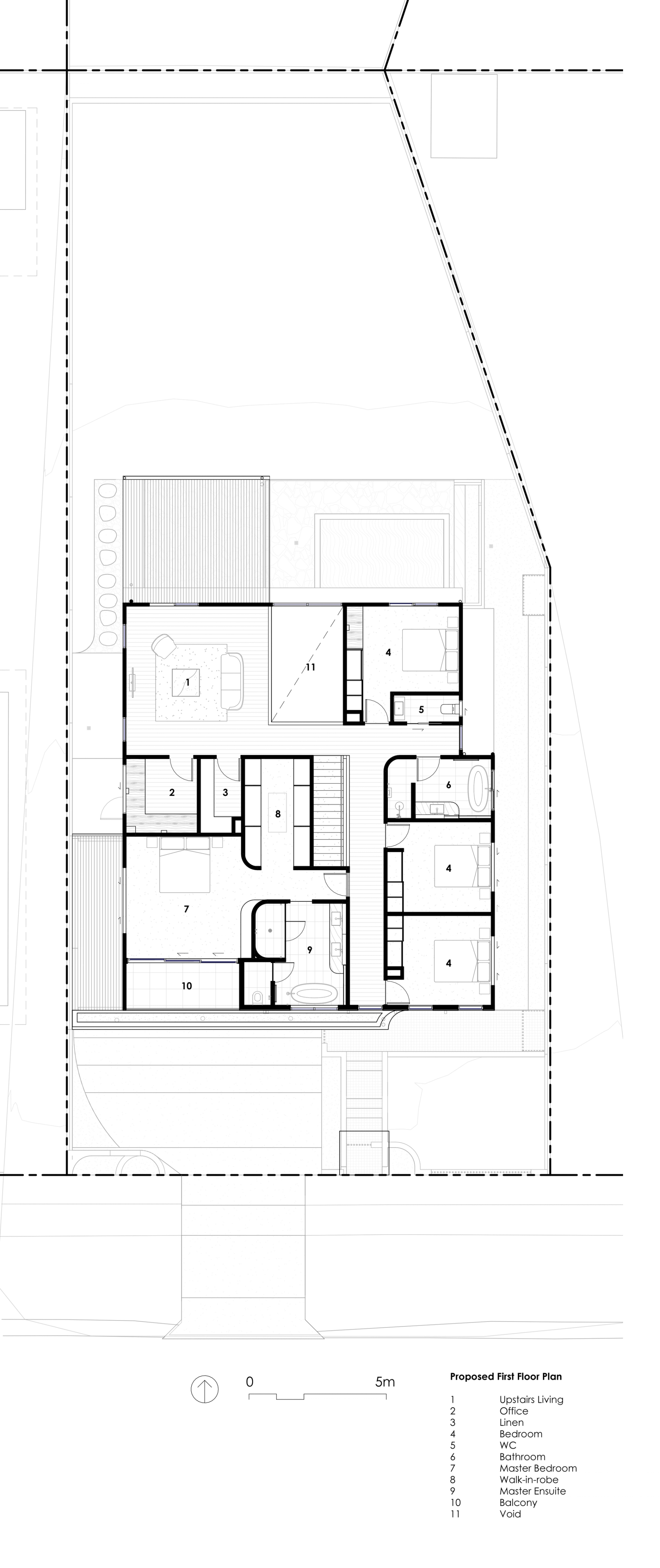
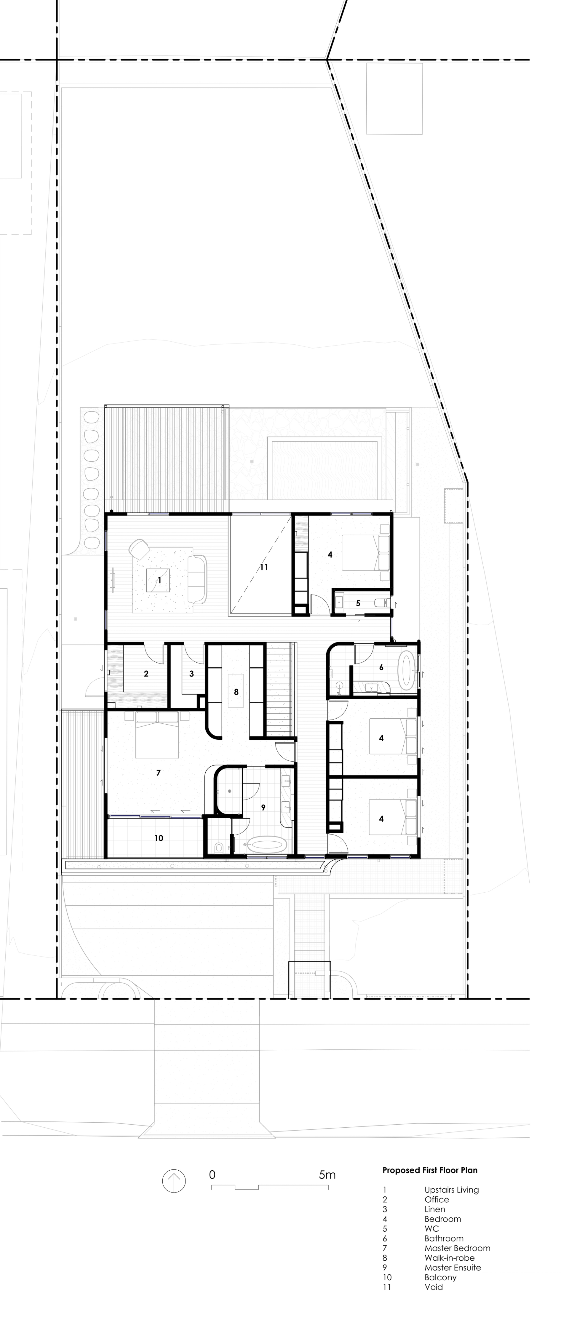
White Hill House
Whites Hill House is an exploration into how a suburban home can become a refuge through the use of privatised space, outlook and materials. The house stretches out along the western boundary to protect against the harsh Queensland afternoon sun and winter prevailing breezes, creating an elevated courtyard that looks out towards Camp Hill. The sunken lounge and double height living and dining spaces create a unique experience which is authentically connected to the site.





















