
Torquay Beach House
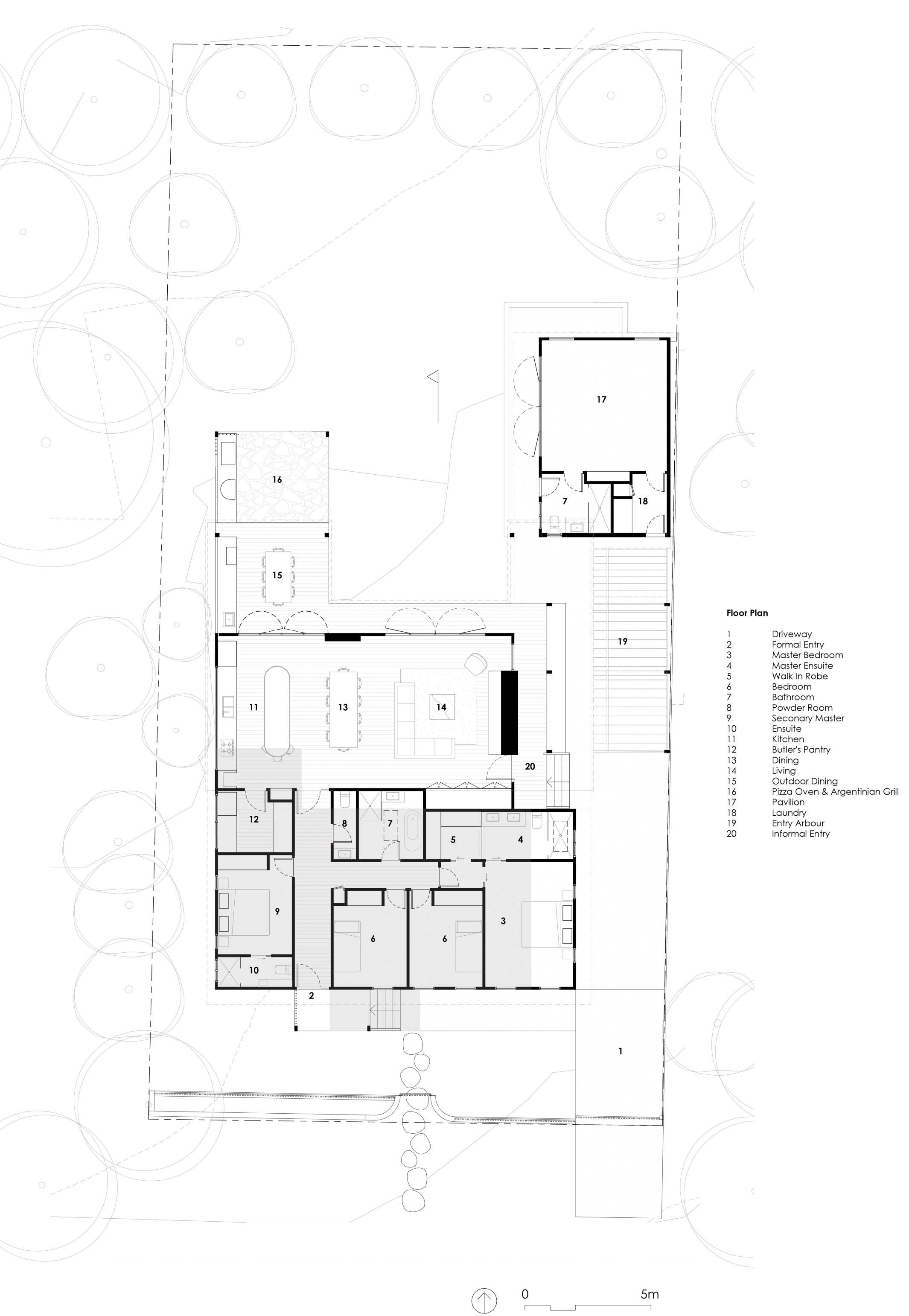
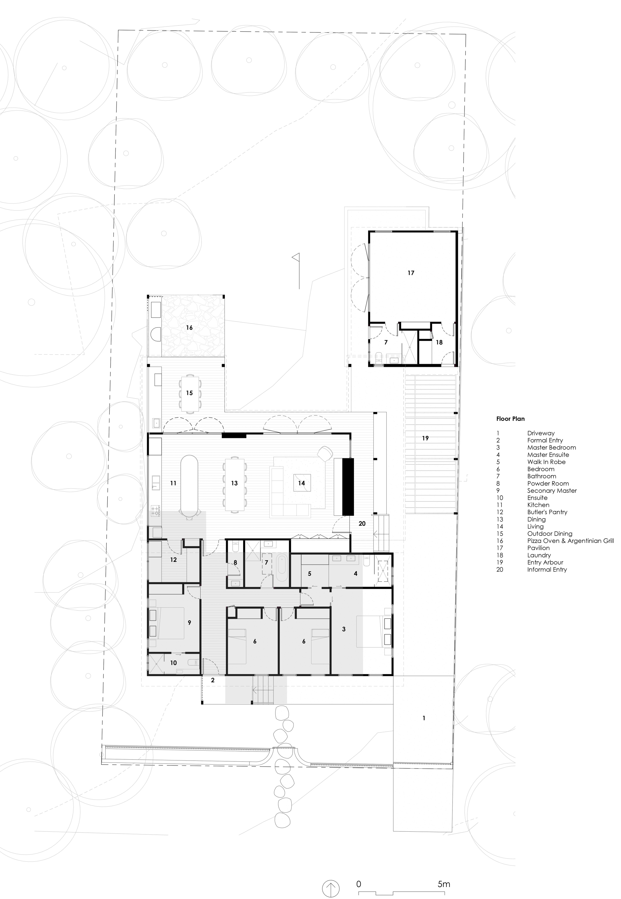
A 5 minute walk from Torquay’s front and back beach, local coffee shops and restaurants and with a north facing rear, this is truly the ideal location for an authentic Torquay beach house. A significant renovation and extension, it was a priority for the owner that front facade kept the character of the traditional Torquay beach shack. However, when you walk through the property, the extension reveals a raked roof opening towards the north, with the house pushed to the edge of the site to maximise the backyard.
Movement through, and use of the house is highly prioritised. The house relates to the walkability of its location. A side, informal entry allows you to access the outdoor shower and hang your wetsuit without getting sand in the house. The separate pavilion provides a place to play pool and keep the music going once the kids have gone to bed. The backbench of the kitchen extends both into the butlers and as a backbench for the outdoor kitchen, with access to the fridge prioritised.
The house is designed for living, for holidays, and for entertaining.























