
AFIO MAI
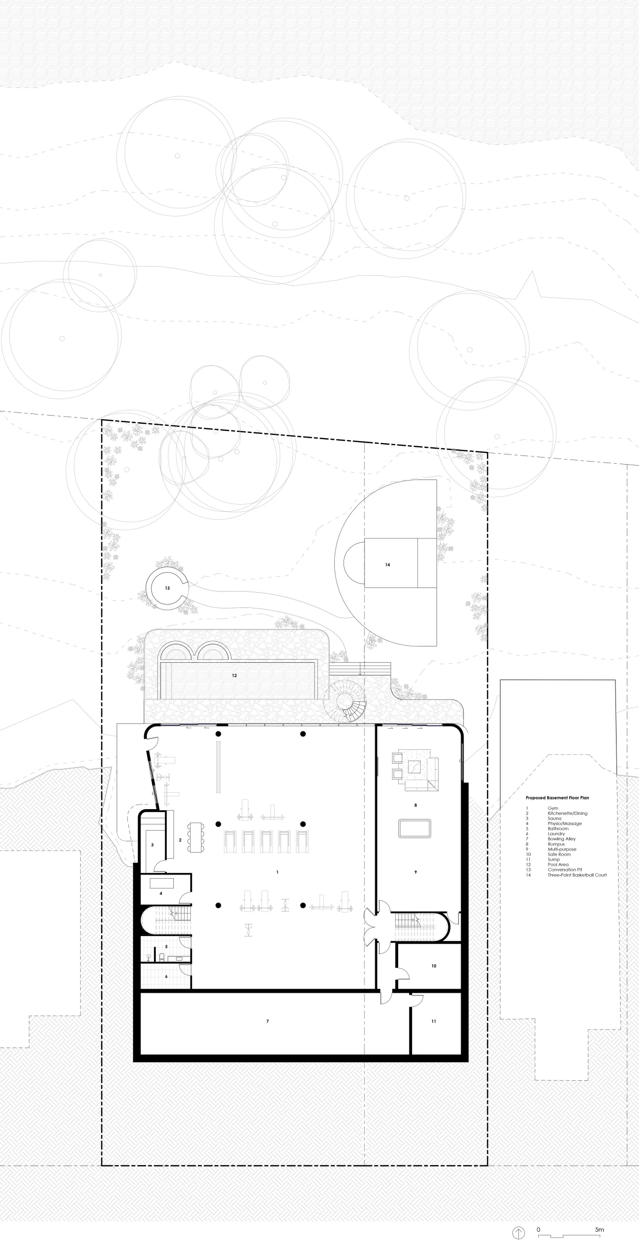
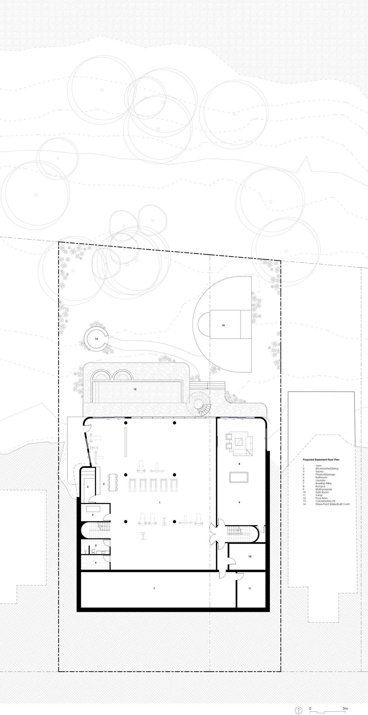
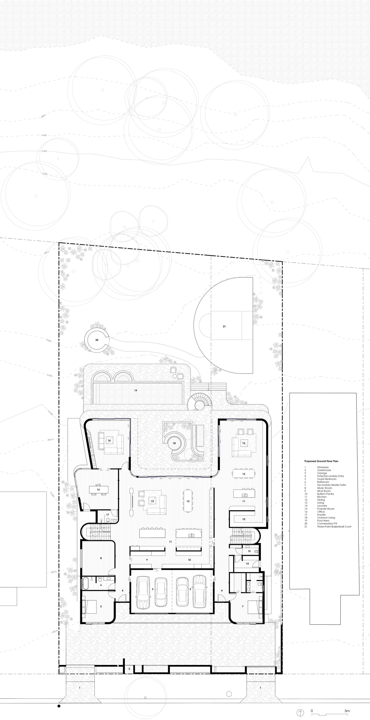
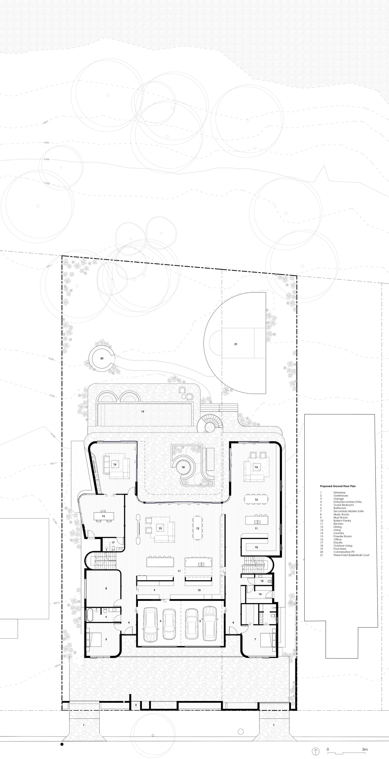
It’s not often that you have a 1800m2 block of north facing rear land directly on the Brisbane River. This special piece of land deserved a special design outcome. Spanning over 3 storeys, including a 600m2 wellness centre, the house is designed specifically to ensure maximum natural light and ventilation throughout the entire home. With a raised courtyard to the north and two wings that span out overlooking it, the house has a large footprint, but feels intimate and connected. Double height voids and skylights assist with those spaces deeper in the plan, resulting in a home that is private yet open and is highly grounded in its place.












