
M House, Carina
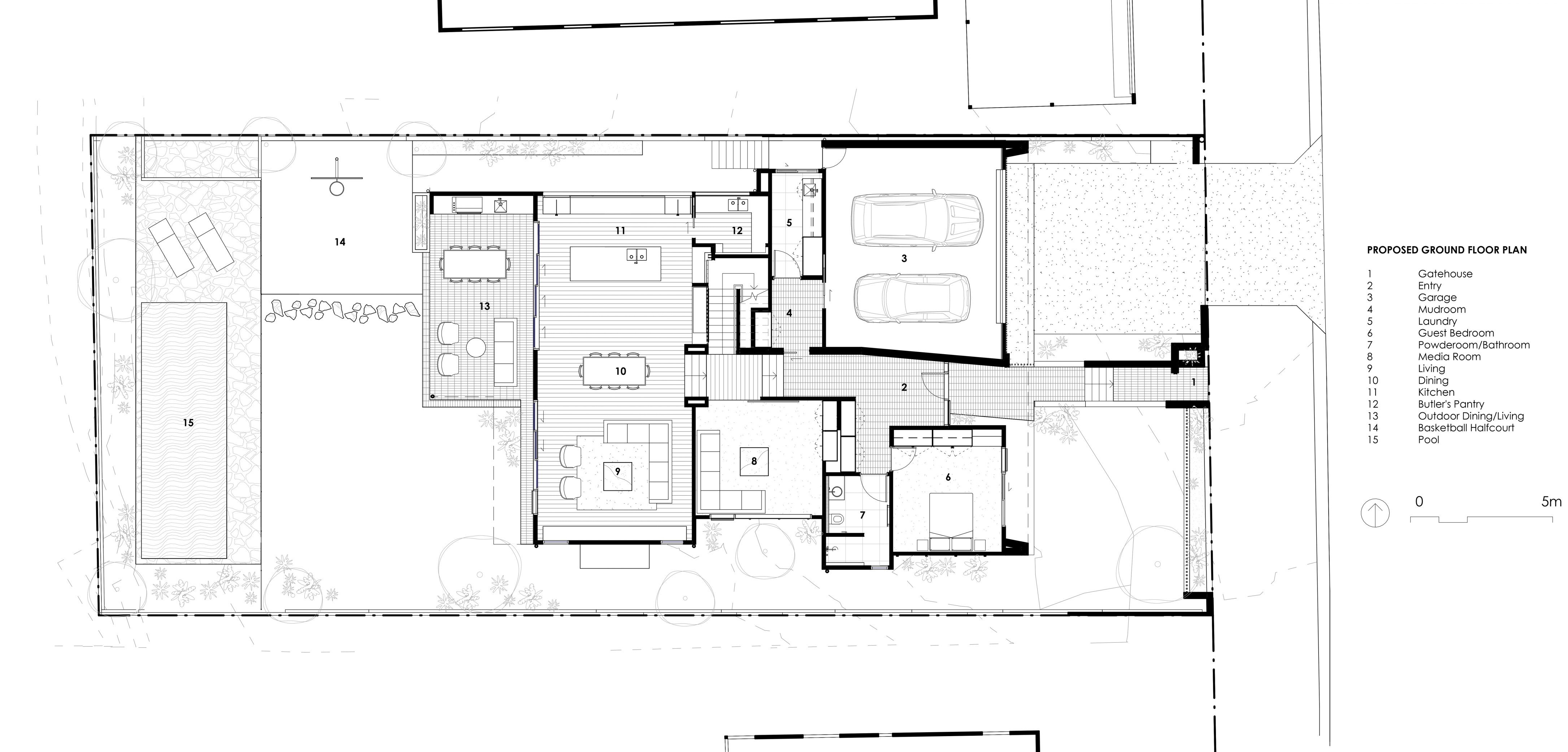
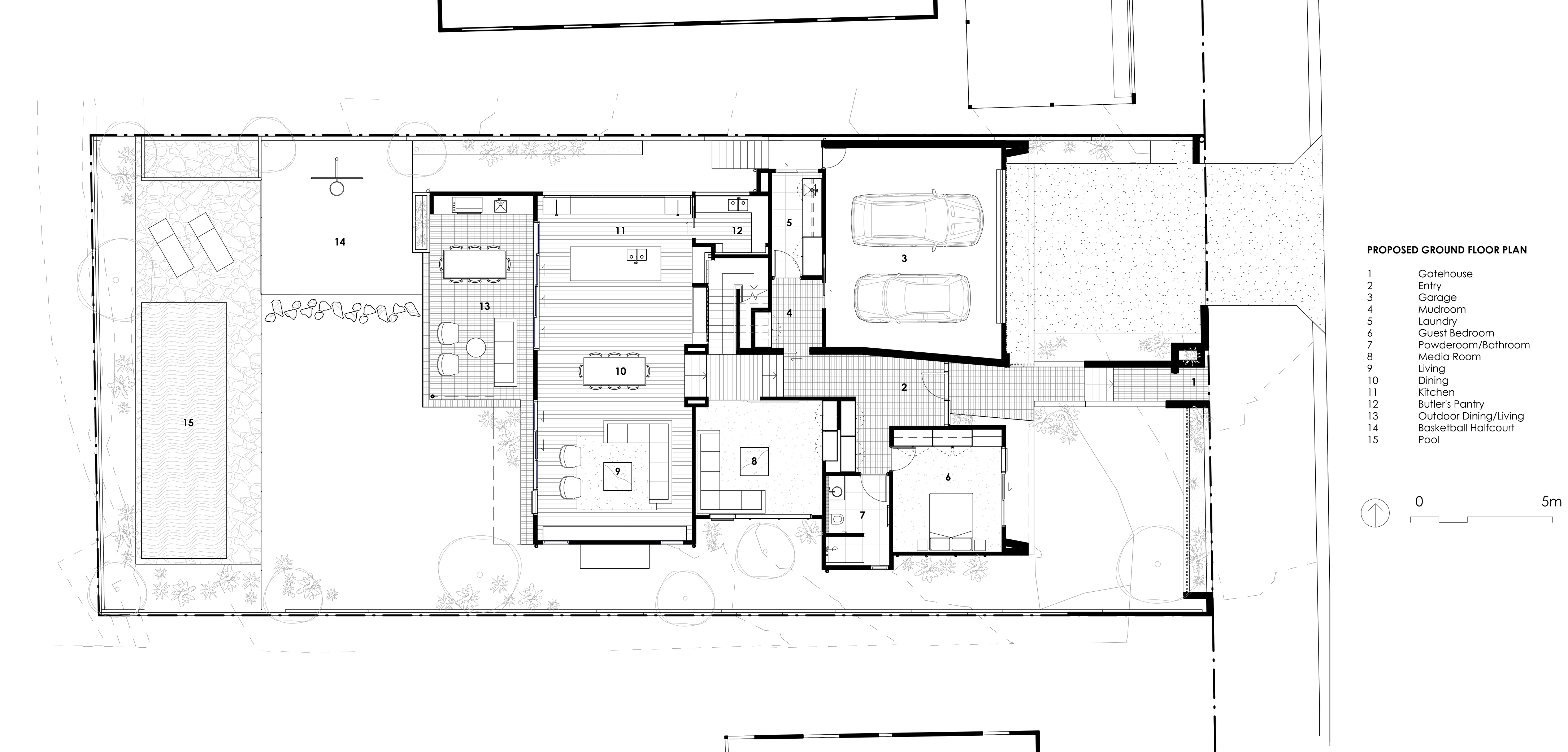
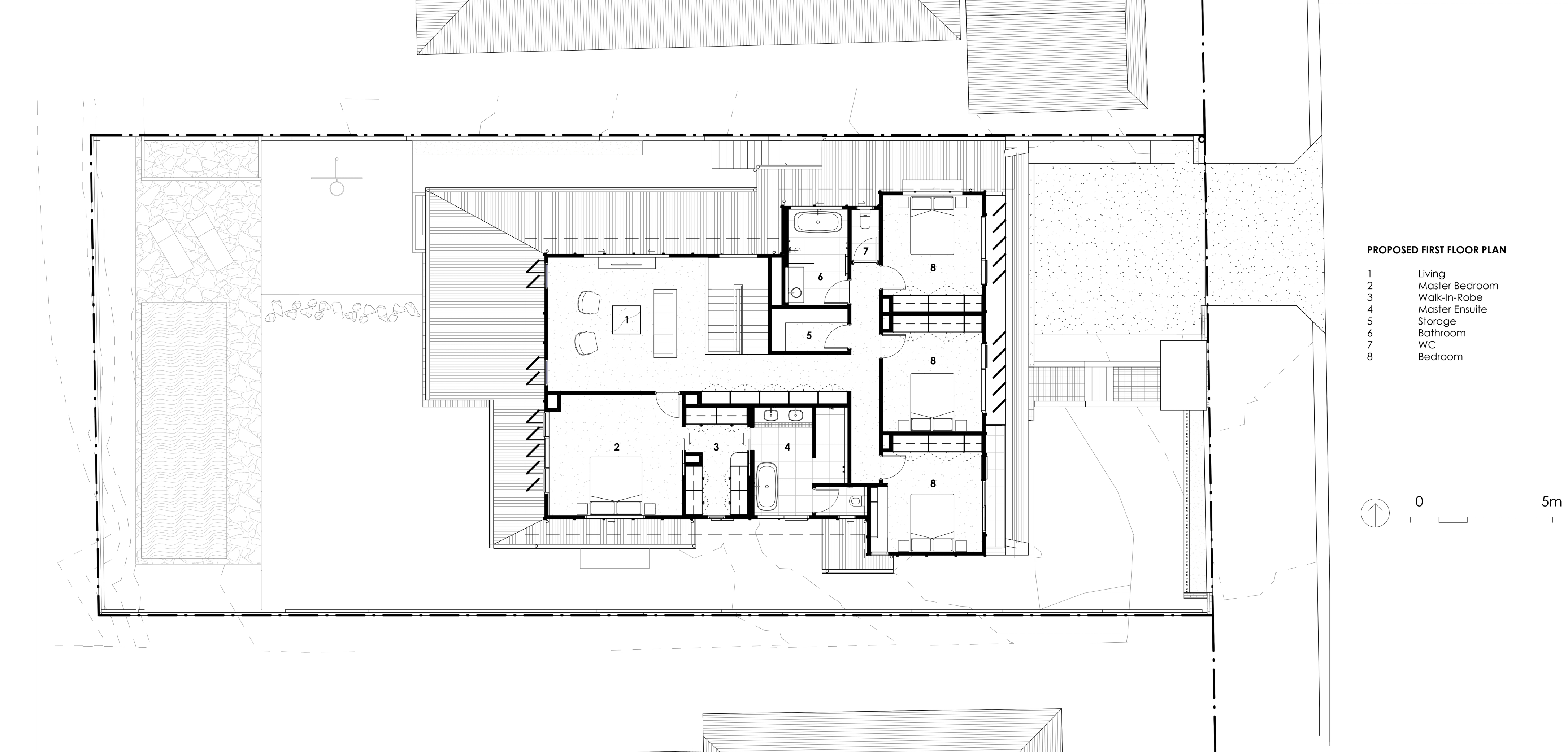
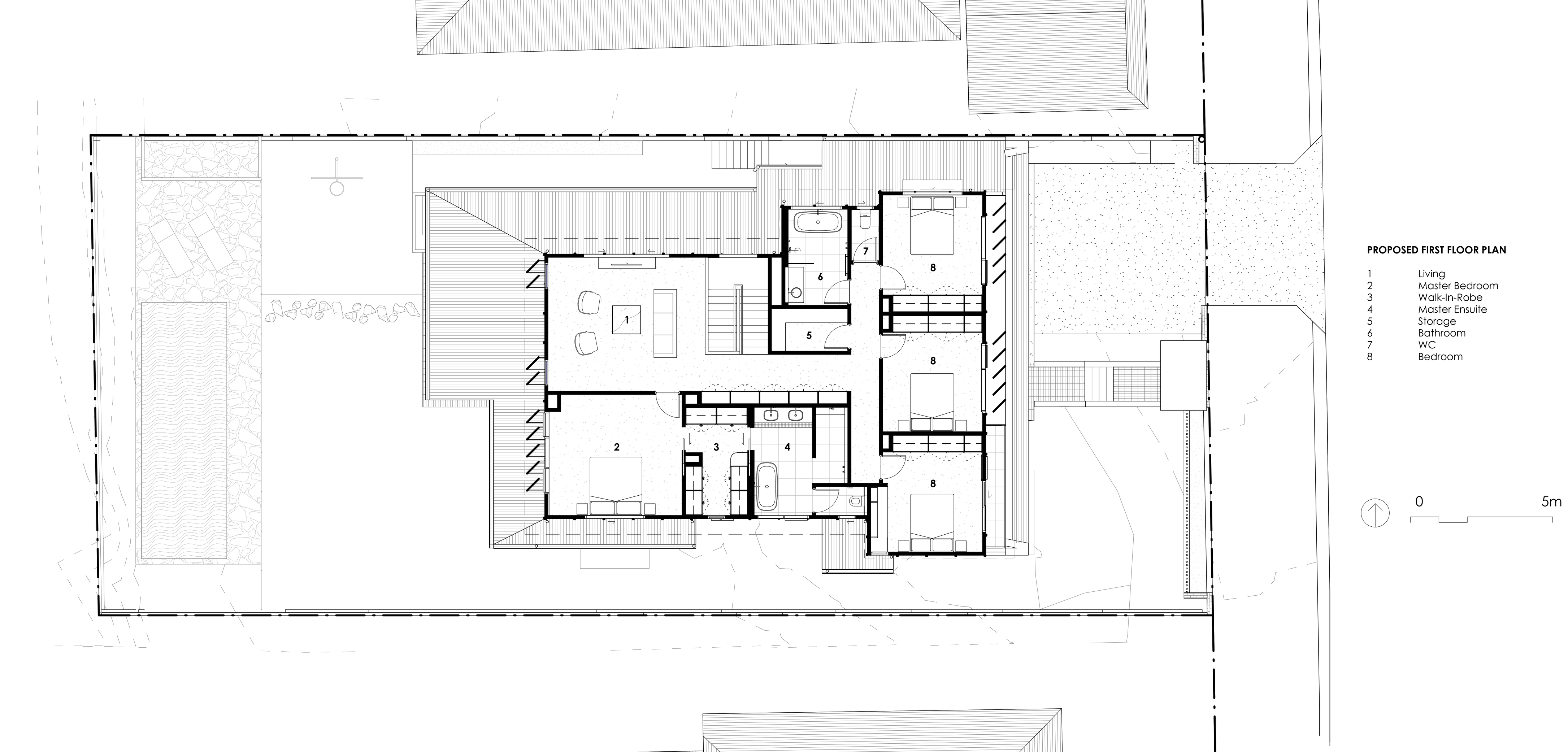
Situated in the inner eastern suburbs of Brisbane, the design for this family home aims to sit comfortably within its character streetscape, while providing contemporary interpretations of the traditional Queenslander.










Situated in the inner eastern suburbs of Brisbane, the design for this family home aims to sit comfortably within its character streetscape, while providing contemporary interpretations of the traditional Queenslander.








